Construction Services in Hyderabad
Land to Home Constructions provides reliable residential and commercial construction services in Hyderabad. Our goal is to deliver strong, durable, and well-planned buildings that meet modern living standards. From the initial planning stage to the final construction work, our team ensures every project is handled with professional supervision and attention to detail.
We focus on creating buildings that are not only structurally strong but also comfortable and practical for everyday use. By combining quality materials, experienced engineers, and proper planning, we help clients turn their ideas into well-built homes and spaces.
Planning and Design
Proper planning is the foundation of any successful construction project. Before starting construction, our team carefully studies the site, understands the client’s requirements, and prepares detailed plans to ensure efficient space utilization and smooth project execution.
Our planning process includes layout preparation, structural planning, and discussion of project timelines. This stage helps clients visualize how the building will be developed and ensures that the design meets both practical and aesthetic requirements.
By focusing on detailed planning, we reduce construction delays and ensure that the project progresses in an organized and efficient manner.
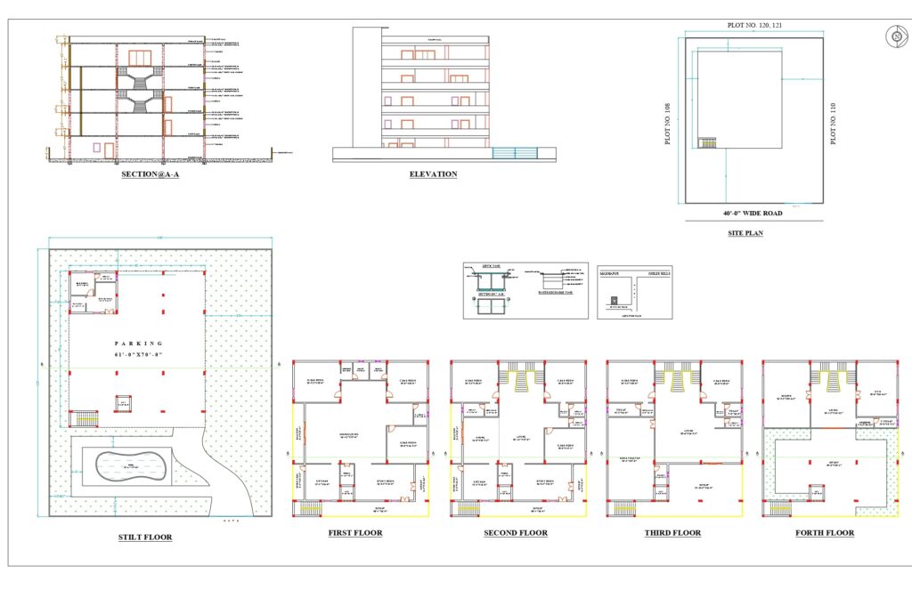
2D Floor Plans
2D floor plans provide a clear and accurate layout of the building, showing the arrangement of rooms, walls, doors, windows, and dimensions. These plans help clients understand how the available space will be organized and used before construction begins.
Our 2D planning focuses on efficient space utilization and practical layouts that improve the functionality and comfort of the building.
3D Floor Plans and Visualization
3D floor plans allow clients to visualize how their building will look after completion. These realistic designs show the layout, interior arrangement, and spatial relationships in a more detailed and visually appealing way.
With 3D visualization, clients can better understand the design concept and make informed decisions about layouts and interior planning before the construction process begins.
Structural Planning
Structural planning ensures that the building is safe, stable, and capable of supporting all loads and environmental conditions. Our structural planning process focuses on designing strong foundations, beams, columns, and slabs that provide long-term durability.
By using proper engineering practices and quality standards, we ensure that every structure is built to maintain strength, stability, and safety.
Building Elevation Design
Elevation design defines the exterior appearance of the building. Our elevation concepts focus on creating modern, elegant, and visually appealing building exteriors that reflect the overall architectural style of the project.
Well-designed elevations enhance the aesthetic value of the building while maintaining practical construction considerations.
Benefits of Professional Construction Planning
Professional construction planning plays a crucial role in ensuring that a building project is completed efficiently, safely, and within budget. Proper planning helps avoid common construction problems such as design changes, material wastage, and project delays.
At Land to Home Constructions, our planning approach focuses on creating detailed building layouts, structural designs, and elevation concepts that guide the entire construction process from start to finish.
By investing time in proper planning, clients can clearly understand the building structure, layout, and appearance before construction begins.
Better Space Utilization
Well-designed floor plans ensure that every area of the building is used efficiently. Proper space planning helps create comfortable living environments while maximizing the available plot area.
Improved Structural Safety
Structural planning ensures that the building is designed with strong foundations, beams, and columns. This improves the overall stability and durability of the structure.
Clear Project Visualization
Through 2D and 3D floor plans, clients can visualize the layout and design of the building before construction begins. This allows changes to be made during the planning stage rather than during construction.
Smooth Construction Process
Detailed planning helps contractors and engineers follow a clear roadmap during construction. This reduces confusion, improves coordination, and helps complete the project on schedule.
Cost Control and Budget Planning
Planning helps estimate material requirements and construction costs accurately. This allows clients to manage their budget effectively and avoid unexpected expenses during the project.
Building Permissions and Approvals
Before starting any construction project, obtaining the required building permissions from local authorities is essential. These approvals ensure that the construction follows government regulations, zoning rules, and safety standards.
At Land to Home Constructions, we assist clients in obtaining the necessary permissions and approvals required for residential and commercial construction projects. Our team guides clients through the documentation process and ensures that the building plans comply with local authority regulations.
By handling the approval process professionally, we help clients avoid delays and legal complications during construction.
Gram Panchayat Building Permissions
For construction projects located in village areas or locations that fall under Gram Panchayat jurisdiction, obtaining Gram Panchayat approval is required before starting construction.
Our team assists clients with the preparation and submission of building plans, documentation, and other required approvals to obtain Gram Panchayat construction permissions. This ensures that the building project follows local rules and regulations applicable to rural areas.
Municipal Building Permissions
In areas governed by municipal authorities, building construction requires approval from the respective municipality. Municipal permissions ensure that the building plan follows local development guidelines, building height limits, and safety standards.
We help clients prepare the necessary documents, submit building plans, and coordinate with municipal authorities to obtain the required construction permissions smoothly.
GHMC Building Permissions
For construction projects located within Hyderabad city limits, approval from the Greater Hyderabad Municipal Corporation is required before starting construction.
Our team assists clients with the GHMC building permission process, including plan submission, documentation, and approval procedures. By ensuring that the building plans comply with GHMC regulations, we help clients start their construction projects without delays.
Residential and Commercial Building Construction
Land to Home specializes in constructing strong and durable buildings using quality materials and modern construction practices.
Our construction services include:
Residential Construction
We build independent houses and villas designed for modern living. Our residential construction services focus on durability, efficient space planning, and comfortable layouts that suit the needs of families.
Commercial Construction
We construct office spaces and commercial buildings that support business operations while maintaining structural strength.
Structural Work and Finishing
From foundation work and RCC structures to finishing stages, our team manages every step with precision and supervision.
Our goal is to deliver buildings that are safe, durable, and built to last.
Our Construction Planning Process
At Land to Home Constructions, we follow a structured planning process to ensure every construction project is carefully designed before the building work begins. Our planning process focuses on understanding the client’s requirements, preparing detailed floor plans, and ensuring the building structure is safe and efficient.
By following a clear planning process, we help clients visualize their project and make informed decisions before construction starts.
Site Evaluation and Requirement Analysis
The first step in the planning process is understanding the client’s needs and evaluating the site conditions. Our team studies the plot size, location, and surrounding environment to develop a suitable building plan.
Floor Plan Development
After evaluating the site, we prepare detailed 2D floor plans that show the layout of rooms, walls, doors, windows, and circulation spaces. These plans help clients understand how the space will be used.
3D Visualization and Design
Once the floor plan is finalized, we create 3D visualizations to give clients a realistic view of the building design. This helps clients visualize the final appearance and make adjustments if required.
Structural Planning and Engineering
Structural planning ensures the building is designed with strong foundations, columns, beams, and slabs. Our engineers focus on creating safe and durable structures that meet construction standards.
Elevation Design and Final Approval
In the final stage of planning, we design the building elevation to define the exterior appearance. Once the planning and design are approved, the project moves forward to the construction phase.
